
買了新家,好不容易找室內設計師合作,想為自己裝潢出理想的房子,等到室內設計圖出來時,看著那些平面圖、天花板圖、地坪圖、弱電配置圖、立面圖、施工圖等等卻兩眼昏花、一頭霧水,不知道這些圖究竟有什麼用?
狸樂聚彙整了裝修時會遇到的各種室內設計圖,幫助大家明白各種圖面的用途,並且了解這些圖該看那些重點!
基本圖面
室內設計圖的基本圖面,多半以平面圖的方式呈現,平面圖是透過俯視、透視的角度,來繪製建物內部結構、組成的圖面,建物若為多樓層,則每樓都會有一張。這也是在裝修規劃時,設計師會用來與屋主、工班溝通的基本圖面。設計師公會依循《CNS建築製圖》訂立了室內設計裝修製圖規範,成為裝潢過程中必備的溝通工具。然而每間廠商的做法不同,有些會將各種資訊全數畫在一張室內設計圖上,有些則會將資訊分門別類各自出圖,加上平面圖上頭雖有一目了然的圖示,更多的是許多數字與抽象記號,因此若從未接觸過,單看平面圖也很難明白,所以狸樂聚將化繁為簡,帶大家重點學習要在複雜的圖面上看到哪些重點。
建築圖
平面圖中的建築圖,即是指尚未經過室內設計的基本格局圖,建商一開始給的圖面就屬於這種,上頭會有標示牆、樑、門、窗、隔間,一些會加上家具的圖例方便購屋者想像,但因為尺寸不明所以單看家具擺放的方式參考性不高,若圖面上有標示A4或A3,S=1:100,這是指印出來之後的比例尺單位(Scale),表示圖上的1公分為實際100公分,可透過這樣換算。不過,一般來說只需讀懂大致格局就能和設計師做基本討論,之後設計師會依實地丈量的尺寸,去繪製後續討論出的裝修的室內設計圖。
基本的線條不難懂,難懂的是實心、空心、斜線、灰色等等分別代表的意涵。例如同樣是牆面的線條,若填色為實心,代表的是不可打除的實牆、承重牆、分戶牆;空心或斜線則是不影響結構、可拆除的分間牆,例如輕隔間、半牆。
代表柱體的方格為實心為實柱,若看見方格呈現空心打叉,多半是廁所旁的管道間,而灰色或斜線通常是空心柱,為配合大樓設計的裝飾柱功能,不影響結構。
再來是樑的標示,若有標示樑的圖面,多會以虛線呈現。但建商的平面圖上多半不會直接畫出樑,此時就要找到實柱的位置,將實柱平行相連,即可找出樑在哪裡,如此就可判斷房子是否有橫樑貫穿樑壓床等等風水顧忌,進一步在室內設計規劃階段想辦法化解。
儘管不同建商會有標示上的差異,但這些大原則基本不變,因此只要知道這些,就能夠看得懂房子的基本結構,對後續裝潢溝通、看懂室內設計圖更動了哪些非常有幫助。

▲建築圖
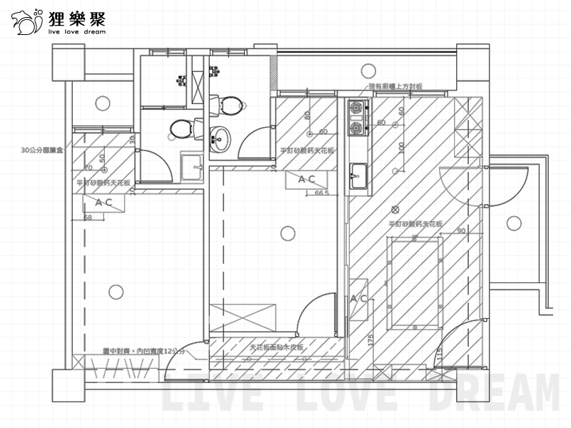
平面配置圖
平面配置圖是指設計師透過在建築圖上擺上各種符號,用以表示沙發、桌椅等等家具,或冰箱、廚房流理臺等設備,呈現室內設計的規劃,也就是裝潢結束後家具與設備的位置,以便在溝通階段調整的室內設計圖。家具的圖示線條簡單,但形狀分明,十分好辨認,一看就能明白,但如果是平台、櫃體都是方塊,就比較難理解了。這時可透過填滿的方式來辨別差異。若方框加單斜線,是高度120公分以下的矮櫃;若方框加上交叉線,則是高於120公分以上的高櫃。此外還有立燈、桌燈於圖面上都屬圓形,但立燈的符號是兩個圈加上交叉線,或圈包裹著S;桌燈則是兩個圈加上直線,或圈包裹著R。
門於平面圖中,多以四分之一圓的形式表現,可同時呈現開門方向,可以藉此了解房子的動線,規劃哪些空間可利用,哪些地方裝潢時須留空。此外,若在門的標示中央看見DW、DH加上數字,是標示門寬及門高的尺寸。
而窗戶的標示,則多落於牆面,以複數條線呈現固定窗的玻璃位置,一般大多是左右開的橫拉窗,若窗戶可以敞開的外推,則會加上斜線、弧線、箭頭表示不同的開啟方法及方向,以WW、WH加數字標示窗戶尺寸,而LH是窗戶下方牆的高度;TH則是窗戶上方牆的高度。
至於更複雜的設備則是依靠縮寫標註,例如:冰箱為REF、空調為A/C。有些設計師甚至會在平面配置圖上標註圖例說明符號意涵,但只要大致了解以上資訊,就能在裝修討論階段好好表達想法,和設計師共同規劃出滿意的室內設計圖。

▲平面配置圖
設計圖面
地坪圖
地坪圖又可稱作鋪面設計圖,功用很單純,主要是給工班師傅了解那些空間要鋪什麼地板的室內設計圖,因此圖面上的資訊量相對單純,會標註用什麼材質鋪設、使用的型號、單塊材料的尺寸、花紋的鋪設方向,以及不同材質的交接處。此外,還會標註鋪設的基準點,也就是裝潢時第一塊磚要從何開始,那是由室內設計師計算後決定的,因為地坪並不完全方正,在鋪設的時候肯定會需要切割材料,算好基準點,就能減少切割材料,並讓不完整的地板材料能夠收束到空間的邊角,使視覺整潔大方,還可用櫃體掩蓋,使裝潢效果更好。
倘若地面沒有太複雜的設計,地坪圖的資訊可能會直接標註在平面配置圖上,不獨立出圖。

▲地坪圖
天花板圖
天花板圖也是一種室內設計圖,與平面圖的差距是平面圖上的標示為建物地上的規劃,而天花板圖則是標註天花板裝修會有的資訊。有基本的樑位、燈具規劃、空調設備、消防設備,較複雜的有線板、窗簾盒、間接照明,甚至是特殊天花板等等。如果裝潢只做簡約的平釘天花板,那麼天花板圖有可能跟燈具迴路圖併成一張室內設計圖。

▲天花板圖
燈具迴路圖
燈具迴路圖上的內容,是用來標示每個燈具的控制開關位置規劃的室內設計圖。一組燈具不僅能使用單一開關控制,還可用上兩、三個,專有名詞稱雙切或三切迴路,代表可從不同地方控制同一盞燈。比方說在臥室使用二切開關,門口放一個,在床頭旁也放一個,睡前就不需要在走到房門口關燈。在圖面上,單切開關的標註為S,通常會連一條線到燈具上來表示該開關控制的燈具,而S3或SS則是雙切開關,會連有兩條線。若裝潢設計不是很複雜,會跟插座弱電規劃一起出圖。

▲燈具迴路圖
開關插座、弱電圖
以電壓來定義強弱電的話,交流電在220V以上的是強電,以下的是弱電,但在臺灣的室內設計中,家中的插座、開關的電源多半只有110V,而網路線、電話線則在36V,因此後者被歸類為弱電配置。而開關插座、弱電圖的功用,就是在室內設計階段將家中電路規劃妥善。開關的標註是S,而插座在圖面中沒有特別標註的都是110V,符號是圓圈裡有兩條直線,若有220V的插座會額外特別標示。網路、電話這些弱電在圖面上的標註為TC,電視的標註為TV,網路、電話、電視會合併標註為CTV。
此外,還有專門設計給單一電器用的專門插座,簡稱專插,擁有防止跳電的獨立迴路,符號表現通常是圓圈裡有三角型,會依不同設備用簡單的英文追加標註,例如:F排油煙機專插、H熱水器專插、W洗衣機專插、G瓦斯專插。若裝潢電路規劃較繁雜,會做圖例表,以便對照看分別代表的意思。
一般新成屋雖然已經有建商給的插座、開關,但數量通常只是基本,可現在科技發達,幫助生活品質的小家電眾多,若是沒有在動工裝修前好好規劃,無論室內設計圖上有多美,入住後各種延長線就會使空間變得雜亂無章,不但不好看,也容易被絆倒,因此開關插座與弱電的配置十分重要。

▲開關插座、弱電圖
施工圖面
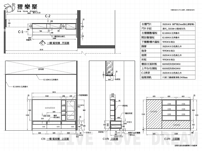
若說室內設計圖中的平面圖,是展現對整體規劃的布局想像,那麼施工圖就是完成想像的說明書,要將打造夢想的材料、設計細節傳達給工班師傅施作,才能妥善呈現裝潢的效果。接下來將詳細介紹立面圖、施工圖2種室內設計的施工圖。立面圖
施工圖面中的立面圖,顧名思義就是將我們站著的情況下平行看見的畫面,將這個畫面繪製下來,就稱為立面圖,而裝潢是要在實際生活的空間施作,人原地旋轉一圈可看到四面,也就是說會有四張立面圖去看到不同方向的裝潢成果。以客廳舉例,若是一張面對規劃含收納櫃體的電視牆立面圖,上頭會依照正確比例,詳細標註櫃體大小,每個抽屜、門板的尺寸,運用的板材的材質與樣式,還有牆面用的油漆,壁掛架的高度,甚至施作工法。透過這張室內設計圖,師傅能夠很清楚的了解客人想要怎麼樣的裝修效果,和室內設計師溝通起來更順利。

▲立面圖
施工圖
施工圖,主要是給工班看的室內設計圖,可看作是一張買市面上的自組家具的說明書,只是內容更加複雜,因為裝修的工法繁多,也需要用到許多不同的材料,會看到圖面上有許多尺寸、距離、材質的說明,使人眼花撩亂。除了一般較好懂的系統櫃的安裝,還有泥作、木作、門窗框、地板鋪設、電路規劃等等施工圖,設計師會依據不同的工種給予不同的圖面,倘若有更複雜的設計細節,就會額外繪製施工大樣圖來跟工班說明內容,若設計並不複雜,只需一般的施工圖就夠了。由於施工圖上頭的資訊繁多,又牽涉許多專業內容,若看不明白是很正常的,有疑慮可以提問,但實際裝潢施作時,設計師會幫忙根據施工圖監工、驗收,因此只要看得懂前面的基本室內設計圖即可。

▲施工圖
3D模擬圖
3D模擬圖的功用,是讓業主在實際裝潢前,更直觀的感受室內設計圖裝修後的實際效果。由設計師依據平面配置圖的規劃建模,不需要憑空想像配置,能夠直接看到畫面,所以具有很大的參考價值。但這也是3D摸擬圖唯一用途,在裝潢施工的溝通上並無幫助,因此並非每個設計師或統包都會提供,若有需求最好能事先提出。以下會介紹3D素模、3D貼材質、3D渲染圖這三種3D模擬圖的差異。3D素模
3D素模是最基本的3D室內設計圖,但因為是由線條及白色構成,只能簡單了解裝修後的空間感、動線配置,沒有辦法透過這階段的圖看出更多效果。

▲3D素模
3D貼材質
貼上材質的3D室內設計圖,除了空間感,還能自由更改材質的色系、紋路,透過這張圖能夠比對配色的大方向是否喜歡,也能夠更確切的看見效果材質,但因為只是簡單的填色,所以僅能簡單做參考,還是要看實際裝潢選用的材質。

▲3D貼材質
3D渲染圖
3D渲染圖是最像照片的擬真室內設計圖,透過電腦運算彩現(render),能精巧展現裝潢後的材質紋理、陰影、色彩等等細節,也因此與前兩者不同,需要花很多時間才能輸出一張,因此這個階段的出圖通常會按出圖張數收費。不過這階段的圖能夠最確實呈現設計的效果,需不需要用到3D渲染圖,端看業主對於構想的要求,並非必要。但要注意,儘管3D渲染圖十分擬真,但現場自然光源差異,以及電腦上多少還是會有色差,所以出圖色彩比實際裝修成果來得明亮是很正常的情形。

▲3D渲染圖
室內設計圖的實務運用
打造新家的風貌,始於學會看室內設計圖的重點,了解各種圖面的功用,自然能和設計師、統包有更良好的溝通,順利完成夢想中的家。狸樂聚接著簡單總結各種圖面在裝修過程中扮演的角色,以及室內設計圖在實務上的費用還有運作方式。
室內設計圖的在裝修中的用途
由上文可知,室內設計圖主要分為三類:基本圖面、設計圖面、3D模擬圖。基本圖面的用途是了解建物大致格局、動線,用於溝通業主裝潢需求。
設計圖面則是設計師依據業主需求規劃而出,最基本的是將天地壁拆分,做出便於理解實務裝潢規劃的圖面,依據業主需求的複雜程度,可能會有客變圖、水路配置圖、空調配置圖、設備位置圖、拆除圖、隔間圖、泥作圖等等相關設計圖,主要是對施作區域與材料選擇進行說明與溝通確認。
施工圖是設計圖面確認後,要進行動工的說明書,可大致見到立面設計的效果,也是工班施作的主要依據。
3D模擬圖並不是裝修規畫中必要的室內設計圖,但在確認設計之前,若能看見3D摸擬圖,能夠更搶先體會實際裝修後的空間感效果,不必依靠想像,因此若有覺得更好的方式也能及時改正。
室內設計圖的收費方式
一般來說,獲得室內設計圖都是要收費的,但由於裝潢尋找的合作對象不同,各家廠商都會有不同的作業方式。若是找統包商裝修,因為直接確認與對方合作工程,有可能只出基本的平面圖不收費,甚至有些統包會遵循比較傳統的做法,在裝潢現場溝通時直接在牆面上繪圖溝通,但這種方式口說無憑,時常造成後續產生爭議。
而找設計師合作,設計師會針對各種工項繪製需要的基本圖面、立面圖,便於與業主溝通,但施工圖這一塊不一定會給業主看,因為施工圖本身就是與工班溝通所用,使師傅們能按圖施工裝修,有圖為證,不容易產生工程糾紛。收費上有些會包含在總價中,有些會獨立列出室內設計圖繪製費用,一般價格通常落在每坪3000~6000元。
至於3D模擬圖無論是找統包商或是設計師合作,都是需要額外付費的,且統包商不一定能繪製。價格多以張數計算,依複雜程度平均每張2000~5000元。
運用室內設計圖的三種裝修模式
實務上,有了室內設計圖後,有三種裝修模式,與資金運用與需要面對的窗口有關。最常見的就是從室內設計圖到施工,都讓同一人處理,也就是找室內設計師,設計約確認無疑慮後,簽訂工程合約。優點是只要面對單一窗口,設計師通常也有合作久的工班,不用怕溝通落差,而且這樣的話有可能設計費用可抵銷一些工程款,但整體價格較高。
另外就是只跟設計師買設計圖,但另找統包施工。或許是喜歡設計師的設計風格,但對於施工安排有所疑慮,也可能是業主自身有心儀的統包,或是設計師排程繁忙沒有空接下工程案。無論如何,找統包合作,就不需要自行拆包找工種,統包會依照圖面安排所有工種的進出場時程,並掌握裝潢施工的細節。因為整個過程面對的窗口不同,所以在前期要確認設計師的圖面有交齊,否則會影響後續統包施工。
最後就是單純買下室內設計圖,自己找各種工種的廠商來完成裝修。這樣做的優點就是便宜,但需要自行花時間心力監工、現場協調,可以說是花時間省錢,必須對裝潢流程有一定的了解,明白工程管理該如何執行,不然因為不清楚各工種的介面,導致進場次序出錯,影響最終成果,甚至出錯,那就不一定能省錢了。
結語
室內設計圖是一項打造出夢想新家的溝通工具,也可以說是一種裝潢語言,狸樂聚希望經過以上介紹能讓大家看懂室內設計圖,能在與設計師、統包溝通時更加流暢。想要了解裝修相關的更多資訊,狸樂聚有提供免費預約設計師諮詢,幫你找到裝修好宅的合作夥伴。——————————————————————————————
▼從裝修到居住考量,了解更多設計規劃▼
2023房間室內設計:必學心法!
2023小坪數裝潢技巧:設計師教你掌握這6點!
▼裝修風格百百種,最喜歡哪種呢?▼
極簡風:4秘訣打造美感與實用兼具的極簡風
仛寂風:用5「不」打造出侘寂風不完美的美
無印風:無印風裝潢是什麼?3個方向打造溫暖日系居家風格
